Если цена в объявлении изменится, мы сразу сообщим вам об этом на электронную почту.
Нажимая «Подписаться», вы соглашаетесь с правилами.
продам 2-к, Сергея Ушакова, 6а7 700 000 ₽
22 фев
Дата публикации объявления
Обн. 23 мар
Дата обновления объявления
3
Количество просмотров (+ просмотры за сегодня)
142 593 ₽/м²
Чистая продажа
Термин "Чистая продажа" означает, что в квартире никто не прописан или
есть куда выписаться и вывезти вещи. Это лучший вариант для покупателя.
Вероятность срыва сделки минимальна.
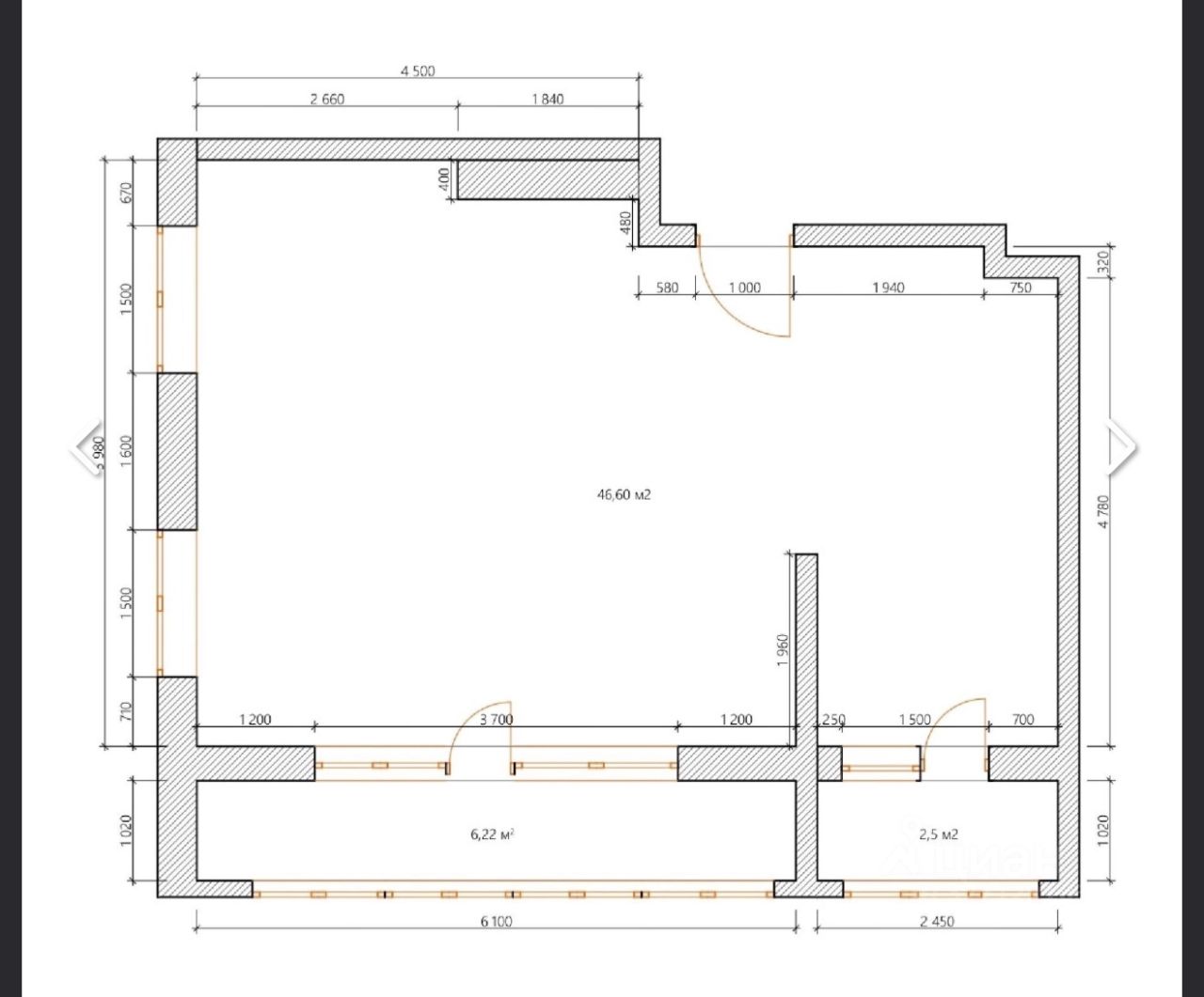
Продам евро-двушку в новом ЖК ''Ягоды''. С прекрасным видом на город и красивым закатом! Квартира расположена в первом доме на 21-этаже.Площадь квартиры 46.6 кв.метров. плюс две просторные лоджии с витражным остеклением, которые не входят в эту площадь. Квартира очень светлая, основные окна смотрят на запад, и теплая. ЦЕНТРАЛЬНОЕ ОТОПЛЕНИЕ. Высота потолков - 2,7 м.
После сдачи дома выполнены подготовительные ремонтные работы: стены выровнены на чистовую, на полу - стяжка, по всей квартире установлена система ''теплый пол''. Индивидуальный счётчик отопления на квартиру.
Дом класса ''Комфорт'', монолитно-каркасный, одноподъездный, три лифта. Есть консьерж ,лапомойки для домашних животных. Весной будет установлен шлагбаум, территория будет охраняемая.
Продам евро-двушку в новом ЖК ''Ягоды''. С прекрасным видом на город и красивым закатом! Квартира расположена в первом доме на 21-этаже.Площадь квартиры 46.6 кв.метров. плюс две просторные лоджии с витражным остеклением, которые не входят в эту площадь. Квартира очень светлая, основные окна смотрят на запад, и теплая. ЦЕНТРАЛЬНОЕ ОТОПЛЕНИЕ. Высота потолков - 2,7 м.
После сдачи дома выполнены подготовительные ремонтные работы: стены выровнены на чистовую, на полу - стяжка, по всей квартире установлена система ''теплый пол''. Индивидуальный счётчик отопления на квартиру.
Дом класса ''Комфорт'', монолитно-каркасный, одноподъездный, три лифта. Есть консьерж ,лапомойки для домашних животных. Весной будет установлен шлагбаум, территория будет охраняемая. Облагороженная прилегающая территория с озером! В жилом комплексе предусмотрены 2 крытых паркинга. В один из них вы можете прямо из своей квартиры спуститься на лифте к машине. Второй - двухэтажный паркинг расположен по соседству. А также здесь обустроены современные и просторные детская и спортивная площадки.
Дом Сдан
КВАРТИРА НЕ ОТ ЗАСТРОЙЩИКА, ПОД ЛЬГОТНЫЕ ИПОТЕКИ НЕ ПОДХОДИТ.